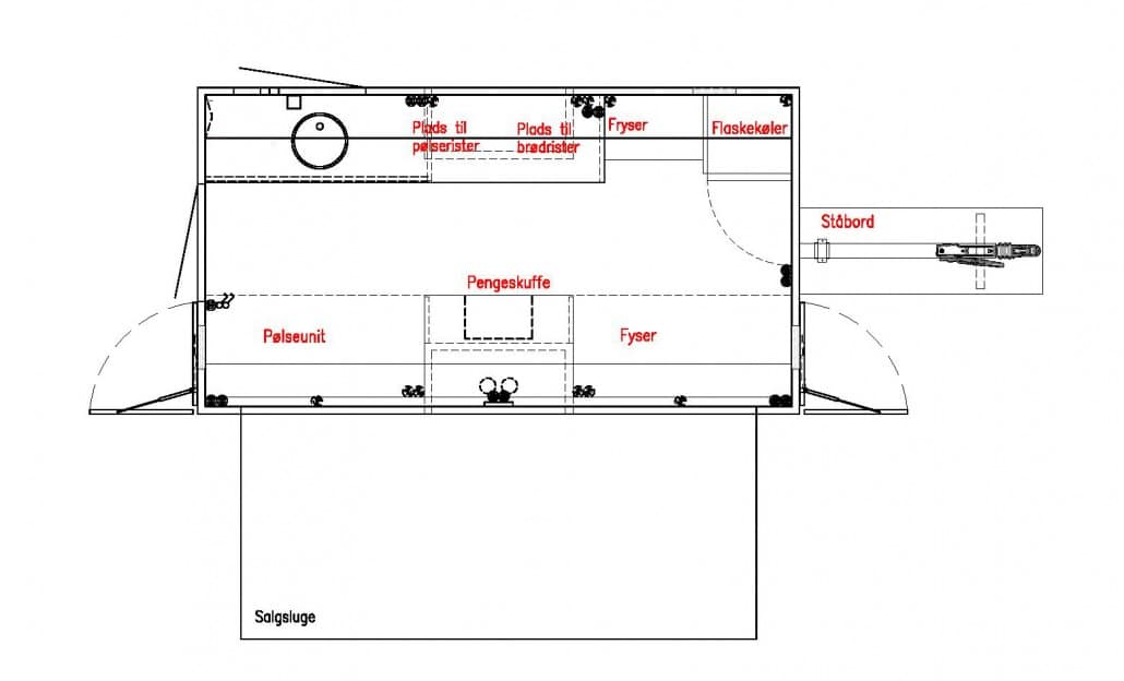
Godiks korvkiosk är utrustad med allt du behöver för att släcka törsten och stilla hungern hos dina många kunder. Försäljningsvagnen är uppdelad i två sektioner, på höger sida finns en korvkammare med stekplattor där man kan steka läckra, krispiga korvar. Bredvid stekplattorna finns det behållare som kan fyllas med alla tillbehör som behövs för att klä korven fint. Brödrosten är placerad på bakre väggen.
På vänster sida av automatvagnen finns en flaskkylare som kan användas för att förvara kalla förfriskningar, t.ex. läskedrycker, öl eller den välkända Cocio, som för länge sedan har blivit synonymt med två stekar, en varmkorv eller andra menyer i korvkiosken.
På vänster sida finns också en frys för glasspinnar och en stor frys för gammaldags glass. Det är möjligt att ta bort grillplattorna och använda försäljningsvagnen enbart som glassvagn. I detta fall kommer en andra frys för gammaldags glass att placeras så att glass kan säljas vid båda försäljningsluckorna.
På den bakre väggen finns hyllor som kan användas som förvaringsutrymme samt en knivhållare, tvålhållare, pappershållare och ett handfat som är anslutet till en vattentank och en avloppstank på 25 liter vardera.
Det finns skyltar för pristavlor och LED-belysning ovanför disken, så att korv, glass och dryck kan säljas dygnet runt om man vill.
En 25 meter lång strömkabel (400V / 32 amp) ingår, som kan anslutas till en 400V 32A CEE-kontakt. Om du behöver en generator för att hålla dina hällar och frysar igång kan du också hyra en generator från Godik.
Kom ihåg att ange om du vill ha ett varumärke för försäljningsvagnen, du kan välja mellan Frisko, Ben & Jerry’s och Premier glass.
Hyr en korv- eller glassvagn för ditt nästa evenemang
Om du planerar ett evenemang, en festival, en företagsfest, ett sportevenemang, en mässa, en julmarknad osv. kan en korvkiosk eller glassvagn vara ett riktigt bra val. Möjligheten att få något varmt att äta eller en god gammaldags glass när solen står högt på himlen gör att många av dina gäster kommer att få ett leende på läpparna och bidra till att sprida den goda stämningen.
En korvvagn med glass är redan en hit bland danskarna, och om du väljer att hyra en korvvagn för festen kan du vara säker på att många kommer att gå över och köpa korv, glass eller kalla förfriskningar.
Ring Godiks försäljningsavdelning på +46 (0)10-264 25 50 för att få veta mer om hur du kan hyra en korvkiosk eller glassvagn. Vi levererar i hela landet, var du än behöver försäljningsvagnen.
Alle priser er ekskl. moms.